Last year I was contacted by some folks in Alexandria, Virginia, with an intriguing project: they have a small backyard, and wanted to install an Endless Pool without giving up the entire yard or making the pool an overwhelming, ugly, dominant feature. I did some research, and the design issues surrounding an Endless Pool are the same as those surrounding an acrylic spa – namely, that without finding a way to tuck it into the surrounding landscape, you have a 3-4′ tall box sitting on a slab. Here’s what the backyard looked like:
Adding to the complexity of the project was the fact that they had recently had a new brick patio installed and weren’t in love with the idea of ripping it out and starting over. And, the yard was actually rather nice, if in need of an update.
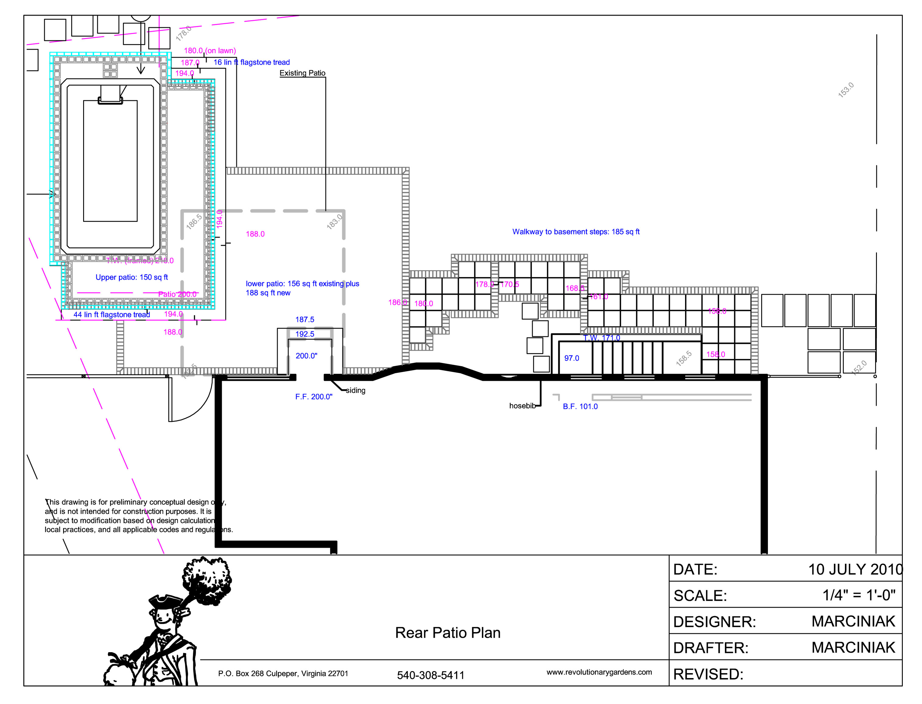
Clearly, the best way to deal with the pool was to partially sink it in the ground. Part of the design process involved a lot of phone calls with the smart people division of Endless Pools, along with emailing back and forth lots of CAD drawings to get the technical details right (note: your random landscapers offering “free designs and estimates” don’t do this level of service). I ended up with a concept that played off the existing shapes, enlarged the patio, and kept the pool tucked down a bit.
As I often do when designing structure, I also did a quick (but accurate) 3D model:
The homeowners loved the concept and moved forward. I wasn’t directly involved with the install on this one, as the pool builder wanted to handle it himself, but I checked in periodically and came in at the end to discuss some hardscaping details and take care of the plantings and sod. It’s still new and not quite ready for prime time, but here are some finished pictures:
______
_____
_____
_____
All in all this was a really fun project to design, and I like that it’s a very simple design that is still very attractive and functional. It’s a fun challenge packing loads of function into the landscape design of a small space.










I really love that you added pictures of the practical solution for storing the canoe. Not something I think would show up on your average HGTV type show “after” pics. It’s very real life though and as someone who has owned a canoe in the past, I know those suckers are a bear to stow and harder to do so somewhat gracefully. This is a lovely project.
Thanks! The original plans had the pool sitting a foot higher, which would have hid the canoe better, but for whatever reason the pool guy pushed it down a foot. So, I may end up designing a short screening panel for them that’ll hide it a bit better.
I’ve come to the realization that I probably am not cut out for HGTV, because I actually do design spaces for real people and real lifestyles. Plus I have a face for radio 🙂
I would just build a rack for the canoe. Cover the purlins with carpent to make the canoe slide easier and then the canoe would be unside down and not tilted. I have an endless pool and canoe in my backyard too, but they are not close together.
Thanks Charles! This may end up becoming a more involved carpentry project; I would love to see a screen panel to better hide the canoe, and then we can look at racks, etc. behind it. I figured I’d wait till all the dust settles from construction before pitching yet another project, though!
Beautiful! May I ask where you purchased your handrail? Our endless pool is two foot above grade, but we don’t currently have a handrail and I imagine it must be easier to have something to hold when entering or exiting. Also, does it mount to the deck alone, or does it have two points of contact?
Our cover was mounted on the end so it wraps the corner, why did you choose to mount yours on top of the deck?
Thanks!
Shaina, the handrail was provided and installed by the contractor who installed the pool (one recommended by Endless Pools), as was the cover, so I don’t really have an answer to your questions. Tom’s pretty old school so I don’t see him commenting back, but I’ll try to find out and get back with you.